道路工事等施工承認書!
2025-02-28 16:22
こんにちは!福本です。静岡市駿河区 M様邸です。
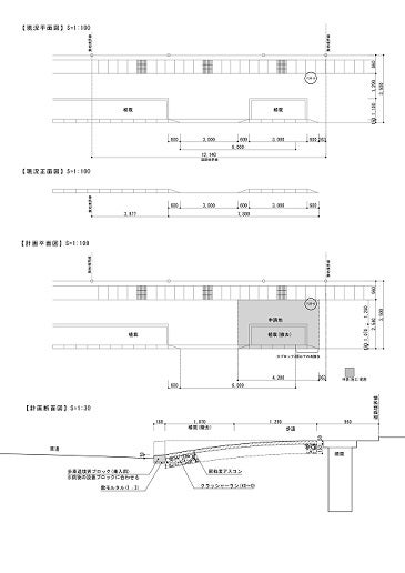
M様の敷地に接する道路には3.5m程の植栽歩道があります。

景観的には緑があって道路景観の向上や沿道環境、自然環境の保全においては良いですが、敷地の駐車計画を考えると段差もあり限られた間口になるので広くしたいものです。そこで、スムーズに乗り入れできるように車道と歩道との段差をなくす「切下げ工事」の申請を行いました。申請先は静岡市役所内の道路管理課です。

現地でレベルや距離の計測をおこない現況平面図と断面図、計画している図面にアスファルトの舗装図を記載した添付図面を申請書に添えて提出します。
切下げ可能な幅は6mまでと決められていますが、残ってしまうブロックが3個以下でしたら撤去可能なルールになっています。
申請が許可されると「道路工事等施工承認書」が交付され切下げ工事を行うことができます。
工事中は歩道も使用できなくなるので、併せて「道路使用許可」の申請も行い受理されました。
来月工事に着手する予定です!












